Haustypen in unserem Angebot
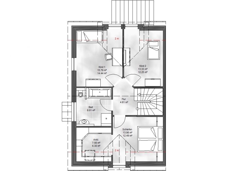
Einfamilienhaus

Einfamilienhäuser gehören zu den am häufigsten gebauten Haustypen und sind für viele Bauherren die ideale Wahl. Solide Einfamilienhäuser sind nicht nur wertbeständig und preiswert, sondern auch flexibel in der Planung. Unterschiedliche Vorstellungen in Bezug auf Wohnfläche und Optik können problemlos umgesetzt werden. Bei den Grundrissen unserer Einfamilienhäuser legen wir großen Wert auf einfache und funktionale Formen. So ist ein gutes Verhältnis zwischen Gebäude und Wohnraum gewährleistet und das Baugrundstück kann optimal genutzt werden
Bei der Wahl des richtigen Modells ist es ratsam, zunächst die Gegebenheiten des Baugrunds, die persönlichen Ansprüche an die Wohnfläche und den finanziellen Rahmen zu ermitteln. Wenn Sie Ihre Vorstellungen präzisiert haben, kann die Suche nach dem richtigen Haus beginnen. Um Ihnen die Entscheidung so leicht wie möglich zu machen, stellen wir Ihnen Grundrisse und Details zu Ausführung und Bauleistungen unserer Massivhäuser zur Verfügung. Die Möglichkeiten sind vielfältig und es können verschiedene Baustile und Dachformen realisiert werden.

Stadtvilla

Die erste Überlegung beim Kauf einer modernen Stadtvilla sollte die Wahl der richtigen Bauweise sein. Je nach Anspruch an Wohnfläche, Anzahl der Zimmer, Innenleben und Wohnkonzept können Stadtvillen als Einfamilienhaus, Zweifamilienhaus oder Mehrgenerationenhaus geplant werden. Kubische Formen mit klaren Linien und funktionalen Grundrissen finden sich in modernen Massivhäusern im Bauhaus-Stil. Mediterrane Stadtvillen sind in ihrer Gestaltung oft nicht sehr eingeschränkt und versprühen mit klassischem Design und großem Balkon mediterranen Charme.
Bei unseren modernen Stadtvillen setzen wir auf rechteckige und quadratische Grundrisse. Diese einfachen Formen sind funktional und nutzen den Bauraum optimal aus. Integrierte Wohn- und Essbereiche schaffen Platz und ermöglichen barrierefreies Wohnen. Schlafzimmer und Bad sind klassisch im Obergeschoss untergebracht. Die Wahl der richtigen Dachform rundet den Gesamteindruck der Stadtvilla ab. Eine häufig gewählte Variante ist das traditionelle Walmdach, aber auch Flach- und Pultdächer sind sehr beliebt.

Bungalow

Die Außengestaltung eines Bungalows bietet viele Möglichkeiten, Ihre persönlichen Vorstellungen zu entwickeln. Durch die flache Bauweise haben Sie die Wahl zwischen vielen verschiedenen Dachformen. Für ein besonders modernes Erscheinungsbild wählen Sie ein einfaches Flachdach, aber auch ein Pultdach oder ein Zeltdach sind Optionen mit vielen Vorteilen. Auch bei der architektonischen Gestaltung gibt es verschiedene Möglichkeiten. Besonders beliebt ist derzeit eine moderne Form in Anlehnung an den Bauhaus-Stil. Natürlich gibt es auch klassische Bungalows, die mit pfiffigen Details und einem ansprechenden Design aufgewertet werden.
Das Besondere im Vergleich zu anderen Haustypen, ist hierbei vor allem das barrierefreie Wohnen auf einer zentralen Wohnebene. In einem Bungalow sind alle Räume ohne Treppensteigen oder unnötige Umwege erreichbar.
Beim Bau eines Bungalows wird häufig ein rechteckiger oder quadratischer Grundriss gewählt. Die eingeschossige Bauweise ist charakteristisch für den modernen Bungalow und verleiht dem Haustyp sein charakteristisches Aussehen. Ein möglicher Nachteil des Haustyps ist das Verhältnis von Baufläche und Wohnnutzfläche. Im direkten Vergleich zu Einfamilienhäusern, Stadtvillen und Doppelhaushälften hat ein Bungalow nur ein Vollgeschoss. Hier sollten Sie abwägen zwischen einem komfortablen Wohnkonzept auf einer zentralen Ebene und zusätzlichem Wohnraum.

Bauhausstil

Unsere Häuser im Bauhaus-Stil können in verschiedenen Varianten geplant werden und lassen sich so ideal an die individuellen Vorstellungen des Kunden anpassen. Sie können zum Beispiel zwischen einem minimalistischen Bungalow, einer modernen Stadtvilla oder einem großzügigen Einfamilienhaus mit ansprechendem Design wählen. Alle Entwürfe zeichnen sich durch ein durchdachtes Design aus, bei dem die Form der Funktion folgt. Die einfachen geometrischen Konturen und die schlicht gestalteten Fassaden sorgen für das elegante und zurückhaltende Erscheinungsbild der Häuser.
Wenn es um die Grundrisse unserer modernen Häuser geht, legen wir Wert auf Funktionalität. Einfache Grundrisse mit rechteckigen Formen nutzen die Baufläche ideal aus und verleihen unseren Modellen ein zeitloses Erscheinungsbild. Das geradlinige Design sorgt für ein harmonisches Erscheinungsbild und schlichte Eleganz. Wohnzimmer, Küche und Esszimmer bilden eine integrierte Einheit mit viel Wohnkomfort. Die Schlafzimmer befinden sich im Obergeschoss. Wir unterstützen Sie bei der Grundrissplanung und helfen Ihnen, das richtige Modell zu finden.

Doppelhaus

Eine Doppelhaushälfte besteht aus zwei Einzelhäusern, die als Einheit gebaut sind. Die Seitenwände treffen hier meist aufeinander. Aus städtebaulichen Gründen werden die Haushälften meist spiegelverkehrt gebaut. Sie haben getrennte Eingänge, Treppenhäuser und separate Zufahrten. Hinsichtlich des Grundrisses und der Dachform gibt es viele Möglichkeiten für die Bauherren. Familien haben in einer Doppelhaushälfte mehr Wohn- und Gartenfläche als z.B. in einem Reihenhaus. Außerdem haben sie nur einen einzigen Nachbarn, was in den meisten Fällen den Wohnkomfort deutlich erhöht.
Die Trennwände der Doppelhaushälften befinden sich entweder genau auf der Grenze von Nachbargrundstücken oder auf einem gemeinsamen Grundstück. Da Doppelhaushälften im Gegensatz zu Einfamilienhäusern weniger Grundstücke benötigen, können sie auch innerhalb von Großstädten geplant werden. Beide Doppelhaushälften werden in Massivbauweise und mit einer eigenen Brandschutzwand errichtet. Außerdem wird die Fuge mit einer Schalldämmung versehen, so dass der mögliche Lärm der Nachbarn nicht zu hören ist. Jede Doppelhaushälfte benötigt ein eigenes Fundament und eine separate Bodenplatte.

Mehrfamilienhaus

In einem Mehrfamilienhaus sind auf mehreren Stockwerken meist kleinere Wohnungen als in einem Doppelhaus untergebracht. Auch ein Mehrfamilienhaus kann individuell gestaltet werden. Für die unterschiedlichen Wohnungen gibt es je nach Größe des Objekts einen oder mehrere Hauseingänge und Treppenaufgänge.
Der Grundriss kann individuell gestaltet werden. Meist erfolgt der Zugang über ein Treppenhaus, von dem aus die Wohnungen links und rechts zu erreichen sind.
Die Lage von Mehrfamilienhäusern befindet sich meistens auf einem großen Grundstück. Die genaue Größe des Grundstücks ergibt sich aus der gewünschten Anzahl der Häuser und Wohnungen.
Die Wände zwischen den Wohnungen werden in massivem Mauerwerk oder Beton hergestellt, was den hohen Schallschutzanforderungen der DIN-Normen entspricht.
Die erforderlichen Rettungswege werden in unserer individuellen Planung gemäß Landesbauordnung errichtet.
Wohnanlage

Mittlere Wohnanlagen sind unser zur Zeit größter Haustyp im Angebot. Der Übergang von Mehrfamilienhäusern zu Wohnanlagen ist teils fließend zu verstehen. Jedoch ist je nach Grundstücksgröße eine Wohnanlage noch flexibler zu planen und enthält oftmals vom Grundriss und Größe sehr unterschiedliche Wohnungen. Dies gibt mehr Möglichkeit in der Architektur der Anlage und macht die Wohnungen sowie die Gemeinschaft in der Wohnanlage attraktiver.
Die meisten Wohnanlagen werden auf einer Tiefgarage errichtet, um die gemäß Landesbauordnung erforderlichen Stellplätze für Fahrrad, Motorrad und PKW unterzubringen.
Wohnanlagen werden meistens auf mehreren großen Grundstücken geplant und nach Fertigstellung zu einer Wohnungseigentümergemeinschaft zusammengeführt.
Die Wände zwischen den Wohnungen werden wie bei Mehrfamilienhäusern auch in massivem Mauerwerk oder Beton hergestellt, was den hohen Schallschutzanforderungen der DIN-Normen entspricht.
Zusätzlich zu den Treppenaufgängen enthalten Wohnanlagen in den meisten Fällen Aufzüge in den einzelnen Wohnblocks. Die erforderlichen Rettungswege werden in unserer individuellen Planung gemäß Landesbauordnung errichtet.







